Kompetente Fachberatung rund um einen Neubauwunsch. Von Anfang bis zum Einzug in guten Händen – Jaeger Finanzierungs-Konzepte & Immobilienvermittlung in Selm
Massivhäuser – beständig und beliebt
Massivhäuser erfreuen sich aufgrund ihrer Beständigkeit weiterhin großer Beliebtheit. Traditionelle Stein-auf-Stein-Arbeiten gepaart mit energieeffizienter Ausstattung sind gefragt wie eh und je. Wir möchten Ihnen als kompetenter Partner bei der Suche nach der passenden Massivhaus-Immobilie zur Seite stehen und kümmern uns im Anschluss gemeinsam mit Ihnen um die ideale Finanzierung Ihres neuen Zuhauses. Nachfolgend möchten wir Ihnen eine Auswahl aktuell erhältlicher Massivhäuser in den unterschiedlichsten Ausführung darstellen. Alle Haustypen haben einen Festpreis gemäß Baubeschreibung inklusive 19 % Mehrwertsteuer. Alle Häuser verstehen sich als Entwürfe und lassen sich nach Ihren ganz persönlichen Vorlieben und Wünschen erweitern, umgestalten und verändern. Die einzige Voraussetzung ist, dass sie weiterhin den jeweiligen Bebauungsvorschriften und Grundstücksgegebenheiten entsprechen.
Mit unserer Unterstützung zur Traumimmobilie
Sie haben ein Haus entdeckt, das Ihren Vorstellungen entspricht? Die massive Bauweise unserer Immobilien ermöglicht Ihnen auch die Einbringung von Eigenkapital. So lässt sich der Preis flexibler gestalten und die Finanzierung noch weiter anpassen. Wir unterstützen Sie bei der Beantragung, Auswahl und Fertigstellung Ihrer Hausfinanzierung, vermitteln preiswerte und leistungsgerechte Bauwerkverträge unserer Baupartner, sprechen mit den Banken und haben durch unsere langjährige Erfahrung gute Kontakte zu sinnvollen Versicherungsunternehmen. Das Team Jaeger-Finanzierungs-Konzepte steht Ihnen bei jedem Schritt auf dem Weg zu Traumimmobilie zur Seite und beantwortet Ihnen selbstverständlich alle Fragen, die unterwegs aufkommen, auch telefonisch. Sprechen Sie mit uns und teilen Sie uns Ihre Ideen für Ihren individuellen Wohntraum mit!
Dies könnte Ihr Traumhaus sein.
Schlüsselfertig ca. 104m² Wohnfläche
Preis auf Anfrage
Doppelhaushälfte Hamburg Putz oder Klinkervariante: gleichpreisig, wegen neuer Energieeinsparverordnung 2018
Putzvariante wird daher mit Wärmedämm-Verbundsystem ausgeführt
Ohne Oberböden in den Wohn- und Schlafräumen und ohne Malerarbeiten
Ohne Versorgungsanschlüsse und ohne Kanalanschluss



Erdgeschoss
| Wohnfläche II. BV | |
|---|---|
| Wohnen/Essen | 28,00 m² |
| Küche | 10,57 m² |
| HWR | 4,93 m² |
| Flur | 6,65 m² |
| WC | 2,16 m² |
| Windfang | 1,84 m² |
| gesamt EG | 54,15 m² |
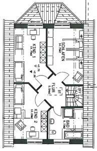
Dachgeschoss
| Wohnfläche II. BV | |
|---|---|
| Eltern | 15,67 m² |
| Kind 1 | 11,16 m² |
| Kind 2 | 10,55 m² |
| Bad | 7,00 m² |
| Flur | 3,04 m² |
| gesamt DG | 47,42 m² |
Haus Hamburg gesamt
Wohnfläche II. BV
101,57 m²
Außenmaß
7,76m x 10,24m
Dies könnte Ihr Traumhaus sein.
Schlüsselfertig ca. 145 qm Wohnfläche
Preis auf Anfrage
Haus Vechta Putz oder Klinkervariante: gleichpreisig, wegen neuer Energieeinsparverordnung 2018
Putzvariante wird daher mit Wärmedämm-Verbundsystem ausgeführt
Ohne Oberböden in den Wohn- und Schlafräumen und ohne Malerarbeiten
Ohne Versorgungsanschlüsse und ohne Kanalanschlusss



Erdgeschoss
| Wohnfläche II. BV | |
|---|---|
| Wohnen/Essen | 29,09 m² |
| Küche | 14,69 m² |
| Kind 1 | 13,40 m² |
| HWR | 5,80 m² |
| Diele | 10,26 m² |
| WC | 3,85 m² |
| Abstellraum | 0,41 m² |
| gesamt EG | 77,50 m² |
Dachgeschoss
| Wohnfläche II. BV | |
|---|---|
| Schlafen | 14,97 m² |
| Kind 2 | 12,24 m² |
| Kind 3 | 12,94 m² |
| Bad | 12,19 m² |
| Flur | 7,88 m² |
| Arbeiten | 7,23 m² |
| gesamt DG | 67,45 m² |
Haus Vechta gesamt
Wohnfläche II. BV
144,95 m²
Außenmaß
10,99m x 8,99m
Dies könnte Ihr Traumhaus sein.
Schlüsselfertig ca. 146m² Wohnfläche
Preis auf Anfrage
Haus Vechta Putz oder Klinkervariante: gleichpreisig, wegen neuer Energieeinsparverordnung 2018
Putzvariante wird daher mit Wärmedämm-Verbundsystem ausgeführt
Ohne Oberböden in den Wohn- und Schlafräumen und ohne Malerarbeiten
Ohne Versorgungsanschlüsse und ohne Kanalanschluss



Erdgeschoss
| Wohnfläche II. BV | |
|---|---|
| Wohnen/Essen 32,45 m² | |
| Küche | 13,42 m² |
| HWR | 8,84 m² |
| Diele | 9,72 m² |
| WC | 2,87 m² |
| Windfang | 2,15 m² |
| Arbeiten | 10,78 m² |
| gesamt EG | 80,23 m² |
Dachgeschoss
| Wohnfläche II. BV | |
|---|---|
| Wohnen/Essen 32,45 m² | |
| Küche | 13,42 m² |
| HWR | 8,84 m² |
| Diele | 9,72 m² |
| WC | 2,87 m² |
| Windfang | 2,15 m² |
| Arbeiten | 10,78 m² |
| gesamt EG | 80,23 m² |
Haus Bremen gesamt
Wohnfläche II. BV
146,21 m²
Außenmaß
9,49m x 10,24m
Dies könnte Ihr Traumhaus sein.
Schlüsselfertig ca. 128m² Wohnfläche
Preis auf Anfrage
Haus Ibbenbüren Putz oder Klinkervariante: gleichpreisig, wegen neuer Energieeinsparverordnung 2018
Putzvariante wird daher mit Wärmedämm-Verbundsystem ausgeführt
Ohne Oberböden in den Wohn- und Schlafräumen und ohne Malerarbeiten
Ohne Versorgungsanschlüsse und ohne Kanalanschluss



Erdgeschoss
| Wohnfläche II. BV | |
|---|---|
| Wohnen/Essen | 20,83 m² |
| Schlafen | 12,96 m² |
| Kind | 9,57 m² |
| Küche | 9,99 m² |
| Bad | 4,98 m² |
| Diele | 7,15 m² |
| 1/2 Abstellraum/Flur 2,16 m² | 2,16 m² |
| gesamt EG | 67,64 m² |
Dachgeschoss
| Wohnfläche II. BV | |
|---|---|
| Wohnen/Essen | 17,64 m² |
| Schlafen | 10,45 m² |
| Kind | 7,61 m² |
| Küche | 7,02 m² |
| Bad | 4,98 m² |
| Diele | 7,15 m² |
| HWR | 1,41 m² |
| 1/2 Abstellraum/Flur | 3,78 m² |
| gesamt DG | 60,04 m² |
Haus Bremen gesamt
Wohnfläche II. BV
127,68 m²
Außenmaß
10,24m x 9,12
Dies könnte Ihr Traumhaus sein.
Schlüsselfertig ca. 133m² Wohnfläche
Preis auf Anfrage
Haus Cappeln Putz oder Klinkervariante: gleichpreisig, wegen neuer Energieeinsparverordnung 2018
Putzvariante wird daher mit Wärmedämm-Verbundsystem ausgeführt
Ohne Oberböden in den Wohn- und Schlafräumen und ohne Malerarbeiten
Ohne Versorgungsanschlüsse und ohne Kanalanschluss



Erdgeschoss
| Wohnfläche II. BV | |
|---|---|
| Wohnen/Essen | 32,90 m² |
| Gast | 7,17 m² |
| Küche | 13,72 m² |
| HWR | 6,45 m² |
| Diele | 8,72 m² |
| WC | 1,80 m² |
| gesamt EG | 70,76 m² |
Dachgeschoss
| Wohnfläche II. BV | |
|---|---|
| Schlafen | 17,75 m² |
| Kind 1 | 12,11 m² |
| Kind 2 | 10,89 m² |
| Bad | 8,81 m² |
| Flur | 10,50 m² |
| Abstellraum | 1,08 m² |
| Loggia | 1,19m² |
| gesamt EG | 62,33 m² |
Haus Cappeln gesamt
Wohnfläche II. BV
133,09 m²
Außenmaß
10,37m x 11,12m
Dies könnte Ihr Traumhaus sein.
Schlüsselfertig ca. 144m² Wohnfläche
Preis auf Anfrage
Haus Oldenburg Putz oder Klinkervariante: gleichpreisig, wegen neuer Energieeinsparverordnung 2018
Putzvariante wird daher mit Wärmedämm-Verbundsystem ausgeführt
Ohne Oberböden in den Wohn- und Schlafräumen und ohne Malerarbeiten
Ohne Versorgungsanschlüsse und ohne Kanalanschluss


Erdgeschoss
| Wohnfläche II. BV | |
|---|---|
| Wohnen/Essen 44,77 m² | |
| Schlafen | 16,56 m² |
| Kind 1 | 15,44 m² |
| Kind 2 | 15,82 m² |
| Küche | 14,71 m² |
| HWR | 8,01 m² |
| Bad | 8,68 m² |
| Küche | 5,75 m² |
Haus Oldenburg gesamt
Wohnfläche II. BV
143,57 m²
Außenmaß
15,50m x 13,50m
Dies könnte Ihr Traumhaus sein.
Schlüsselfertig ca. 79m² Wohnfläche
Preis auf Anfrage
Haus Lamstedt Putz oder Klinkervariante: gleichpreisig, wegen neuer Energieeinsparverordnung 2018
Putzvariante wird daher mit Wärmedämm-Verbundsystem ausgeführt
Ohne Oberböden in den Wohn- und Schlafräumen und ohne Malerarbeiten
Ohne Versorgungsanschlüsse und ohne Kanalanschluss


Erdgeschoss
| Wohnfläche II. BV | |
|---|---|
| Wohnen/Essen | 28,37 m² |
| Schlafen | 13,75 m² |
| Küche | 12,79 m² |
| HWR | 4,37 m² |
| Küche | 14,71 m² |
| Bad | 7,87 m² |
| Diele/VT | 11,70 m² |
Haus Lamstedt gesamt
Wohnfläche II. BV
78,85 m²
Außenmaß
10,99m x 8,87m
Dies könnte Ihr Traumhaus sein.
Schlüsselfertig ca. 128m² Wohnfläche
Preis auf Anfrage
Haus SelmPutz oder Klinkervariante: gleichpreisig, wegen neuer Energieeinsparverordnung 201
Putzvariante wird daher mit Wärmedämm-Verbundsystem ausgeführt
Ohne Oberböden in den Wohn- und Schlafräumen und ohne Malerarbeiten
Ohne Versorgungsanschlüsse und ohne Kanalanschluss



Dies könnte Ihr Traumhaus sein.
Schlüsselfertig ca. 119m² Wohnfläche
Preis auf Anfrage
Haus Verden Putz oder Klinkervariante: gleichpreisig, wegen neuer Energieeinsparverordnung 2018
Putzvariante wird daher mit Wärmedämm-Verbundsystem ausgeführt
Ohne Oberböden in den Wohn- und Schlafräumen und ohne Malerarbeiten
Ohne Versorgungsanschlüsse und ohne Kanalanschluss


Erdgeschoss
| Wohnfläche II. BV | |
|---|---|
| Wohnen/Essen | 31,33 m² |
| Schlafen | 16,93 m² |
| Kind/Gast | 12,06 m² |
| Küche | 17,40 m² |
| HWR | 10,30 m² |
| Bad | 6,00 m² |
| WC | 2,79 m² |
| Diele | 9,21 m² |
| Flur | 3,28 m² |
| Windfang | 5,91 m² |
| überdachte Terrasse | 3,94 m² |
| gesamt EG | 119,15 m² |
Haus Verden gesamt
Wohnfläche II. BV
119,15 m²
Außenmaß
13,74m x 10,87m
Dies könnte Ihr Traumhaus sein.
Schlüsselfertig ca. 161m² Wohnfläche
Preis auf Anfrage
Haus Goldenstedt Putz oder Klinkervariante: gleichpreisig, wegen neuer Energieeinsparverordnung 2018
Putzvariante wird daher mit Wärmedämm-Verbundsystem ausgeführt
Ohne Turm und Gauben
Ohne Oberböden in den Wohn- und Schlafräumen und ohne Malerarbeiten
Ohne Versorgungsanschlüsse und ohne Kanalanschluss



Erdgeschoss
| Wohnfläche II. BV | |
|---|---|
| Wohnen/Essen | 32,04 m² |
| Gästezimmer | 11,36 m² |
| Küche | 14,76 m² |
| HWR | 8,51 m² |
| Diele | 14,13 m² |
| WC | 3,04 m² |
| gesamt EG | 83,84 m² |
Dachgeschoss
| Wohnfläche II. BV | |
|---|---|
| Schlafen | 25,15 m² |
| Kind 1 | 11,02 m² |
| Kind 2 | 15,16 m² |
| Bad | 9,61 m² |
| Flur | 13,12 m² |
| Abstellraum | 3,12 m² |
Haus Goldenstedt
gesamt
Wohnfläche II. BV
161,02 m²
Außenmaß
11,74m x 10,49m
Dies könnte Ihr Traumhaus sein.
Schlüsselfertig ca. 169m² Wohnfläche
Preis auf Anfrage
Haus Hude Putz oder Klinkervariante: gleichpreisig, wegen neuer Energieeinsparverordnung 2018
Putzvariante wird daher mit Wärmedämm-Verbundsystem ausgeführt
Ohne Oberböden in den Wohn- und Schlafräumen und ohne Malerarbeiten
Ohne Versorgungsanschlüsse und ohne Kanalanschluss



Erdgeschoss
| Wohnfläche II. BV | |
|---|---|
| Wohnen/Essen | 39,77 m² |
| Arbeiten | 10,40 m² |
| Küche | 17,51 m² |
| HWR | 10,23 m² |
| Diele | 13,58 m² |
| WC | 3,19 m² |
| gesamt EG | 94,68 m² |
Dachgeschoss
| Wohnfläche II. BV | |
|---|---|
| Schlafen | 23,44 m² |
| Kind 1 | 16,78 m² |
| Kind 2 | 14,85 m² |
| Küche | 14,71 m² |
| Bad | 10,13 m² |
| Flur | 8,68 m² |
| gesamt DG | 73,88 m² |
Haus Hude gesamt
Wohnfläche II. BV
168,56 m²
Außenmaß
11,74m x 10,99m
Dies könnte Ihr Traumhaus sein.
Schlüsselfertig ca. 129m² Wohnfläche
Preis auf Anfrage
Haus Lohne Putz oder Klinkervariante: gleichpreisig, wegen neuer Energieeinsparverordnung 2018
Putzvariante wird daher mit Wärmedämm-Verbundsystem ausgeführt
Ohne Oberböden in den Wohn- und Schlafräumen und ohne Malerarbeiten
Ohne Versorgungsanschlüsse und ohne Kanalanschluss



Erdgeschoss
| Wohnfläche II. BV | |
|---|---|
| Wohnen/Essen | 41,51 m² |
| Küche | 14,76 m² |
| HWR | 7,53 m² |
| Diele | 12,34 m² |
| WC | 4,16 m² |
| gesamt EG | 80,30 m² |
Dachgeschoss
| Wohnfläche II. BV | |
|---|---|
| Eltern | 12,25 m² |
| Kind 1 | 10,21 m² |
| Kind 2 | 10,04 m² |
| Bad | 8,80 m² |
| Flur | 7,39 m² |
| gesamt DG | 48,49 m² |
Haus Lohne gesamt
Wohnfläche II. BV
128,99 m²
Außenmaß
9,99m x 9,99m
Dies könnte Ihr Traumhaus sein.
Schlüsselfertig ca. 145m² Wohnfläche
Preis auf Anfrage
Haus Visbek Putz oder Klinkervariante: gleichpreisig, wegen neuer Energieeinsparverordnung 2018
Putzvariante wird daher mit Wärmedämm-Verbundsystem ausgeführt
Ohne Oberböden in den Wohn- und Schlafräumen und ohne Malerarbeiten
Ohne Versorgungsanschlüsse und ohne Kanalanschluss



Erdgeschoss
| Wohnfläche II. BV | |
|---|---|
| Wohnen/Essen | 31,48 m² |
| Schlafen | 13,55 m² |
| Küche | 13,26 m² |
| Gast | 8,34 m² |
| Diele | 9,16 m² |
| WC | 2,67 m² |
| gesamt EG | 78,46 m² |
Dachgeschoss
| Wohnfläche II. BV | |
|---|---|
| Kind 1 | 12,66 m² |
| Kinder 1 | 16,19 m² |
| Kinder 2 | 17,73 m² |
| Bad | 9,07 m² |
| Flur | 10,76 m² |
| gesamt DG | 66,41 m² |
Haus Visbek gesamt
Wohnfläche II. BV
144,87 m²
Außenmaß
11,74m x 9,74m
Dies könnte Ihr Traumhaus sein.
Schlüsselfertig ca. 117m² Wohnfläche
Preis auf Anfrage
Haus Bevern Putz oder Klinkervariante: gleichpreisig, wegen neuer Energieeinsparverordnung 2018
Putzvariante wird daher mit Wärmedämm-Verbundsystem ausgeführt
Ohne Oberböden in den Wohn- und Schlafräumen und ohne Malerarbeiten
Ohne Versorgungsanschlüsse und ohne Kanalanschluss



Erdgeschoss
| Wohnfläche II. BV | |
|---|---|
| Wohnen/Essen | 30,80 m² |
| Küche | 11,35 m² |
| HWR | 8,57 m² |
| Diele | 9,14 m² |
| WC | 2,37 m² |
| Windfang | 2,31 m² |
| gesamt EG | 64,54 m² |
Dachgeschoss
| Wohnfläche II. BV | |
|---|---|
| Schlafen | 14,90 m² |
| Kind 1 | 11,52 m² |
| Kind 2 | 11,48 m² |
| Bad | 10,04 m² |
| Flur | 4,38 m² |
| gesamt DG | 52,32 m² |
Haus Visbek gesamt
Wohnfläche II. BV
116,86 m²
Außenmaß
9,74m x 8,49m
Dies könnte Ihr Traumhaus sein.
Schlüsselfertig ca. 197m² Wohnfläche
Preis auf Anfrage
Haus Ermke Putz oder Klinkervariante: gleichpreisig, wegen neuer Energieeinsparverordnung 2018
Putzvariante wird daher mit Wärmedämm-Verbundsystem ausgeführt
Ohne Oberböden in den Wohn- und Schlafräumen und ohne Malerarbeiten
Ohne Versorgungsanschlüsse und ohne Kanalanschluss



Erdgeschoss
| Wohnfläche II. BV | |
|---|---|
| Wohnen/Essen | 39,25 m² |
| Gast | 13,05 m² |
| Küche | 16,63 m² |
| HWR | 12,47 m² |
| WC | 3,05 m² |
| Gardrobe | 2,70 m² |
| Diele | 13,68 m² |
| Abstellraum | 1,76 m² |
| gesamt EG | 102,59 m² |
Dachgeschoss
| Wohnfläche II. BV | |
|---|---|
| Schlafen | 16,60 m² |
| Kind 1 | 26,10 m² |
| Kind 2 | 26,90 m² |
| Bad | 12,90 m² |
| Flur | 11,55 m² |
| gesamt DG | 94,05 m² |
Haus Visbek gesamt
Wohnfläche II. BV
196,64 m²
Außenmaß
12,62m x 10,12m
Dies könnte Ihr Traumhaus sein.
Schlüsselfertig ca. 186m² Wohnfläche
Preis auf Anfrage
Haus Bösel Putz oder Klinkervariante: gleichpreisig, wegen neuer Energieeinsparverordnung 2018
Putzvariante wird daher mit Wärmedämm-Verbundsystem ausgeführt
Ohne Oberböden in den Wohn- und Schlafräumen und ohne Malerarbeiten
Ohne Versorgungsanschlüsse und ohne Kanalanschluss



Erdgeschoss
| Wohnfläche II. BV | |
|---|---|
| Wohnen/Essen | 36,09 m² |
| Küche | 16,66 m² |
| Arbeitszimmer | 11,68 m² |
| HWR | 10,32 m² |
| WC | 2,82 m² |
| Diele | 16,54 m² |
| Überdachte Terrasse | 2,93 m² |
| gesamt EG | 97,04 m² |
Dachgeschoss
| Wohnfläche II. BV | |
|---|---|
| Schlafzimmer | 15,47 m² |
| Ankleidezimmer | 8,80 m² |
| Kind 1 | 18,01 m² |
| Kind 2 | 16,46 m² |
| Bad | 16,76 m² |
| Flur | 8,84 m² |
| gesamt DG | 88,88 m² |
Haus Bösel gesamt
Wohnfläche II. BV
185,92 m²
Außenmaß
12,24m x 10,49m
Dies könnte Ihr Traumhaus sein.
Schlüsselfertig ca. 108m² Wohnfläche
Preis auf Anfrage
Doppelhaushälfte Marl Putz oder Klinkervariante: gleichpreisig, wegen neuer Energieeinsparverordnung 2009
Putzvariante wird daher mit Wärmedämm-Verbundsystem ausgeführt
Ohne Oberböden in den Wohn- und Schlafräumen und ohne Malerarbeiten
Ohne Versorgungsanschlüsse und ohne Kanalanschluss



Erdgeschoss
| Wohnfläche II. BV | |
|---|---|
| Wohnen/Essen | 29,72 m² |
| Küche | 12,81 m² |
| HWR | 5,32 m² |
| Diele | 7,89 m² |
| WC | 2,63 m² |
| gesamt EG | 58,37 m² |
Dachgeschoss
| Wohnfläche II. BV | |
|---|---|
| Schlafen | 16,28 m² |
| Kind 1 | 9,29 m² |
| Kind 2 | 10,70 m² |
| Bad | 9,29 m² |
| Flur | 4,07 m² |
| gesamt DG | 49,63 m² |
Haus Marl gesamt
Wohnfläche II. BV
108,00 m²
Außenmaß
8,50m x 8,99m
Dies könnte Ihr Traumhaus sein.
Schlüsselfertig ca. 108m² Wohnfläche
Preis auf Anfrage
Doppelhaushälfte Menden Putz oder Klinkervariante: gleichpreisig, wegen neuer Energieeinsparverordnung 2009
Putzvariante wird daher mit Wärmedämm-Verbundsystem ausgeführt
Ohne Oberböden in den Wohn- und Schlafräumen und ohne Malerarbeiten
Ohne Versorgungsanschlüsse und ohne Kanalanschluss



Erdgeschoss
| Wohnfläche II. BV | |
|---|---|
| Wohnen/Essen | 28,38 m² |
| Küche | 12,04 m² |
| HWR | 6,97 m² |
| Diele | 9,88 m² |
| WC | 1,78 m² |
| gesamt EG | 59,05 m² |
Dachgeschoss
| Wohnfläche II. BV | |
|---|---|
| Schlafen | 13,33 m² |
| Kind 1 | 14,16 m² |
| Kind 2 | 10,07 m² |
| Bad | 6,81 m² |
| Flur | 3,94 m² |
| gesamt DG | 48,31 m² |
Haus Menden gesamt
Wohnfläche II. BV
107,36 m²
Außenmaß
7,00m x 10,99m
Dies könnte Ihr Traumhaus sein.
Schlüsselfertig ca. 124m² Wohnfläche
Preis auf Anfrage
Doppelhaushälfte Schwerte Putz oder Klinkervariante: gleichpreisig, wegen neuer Energieeinsparverordnung 2018
Putzvariante wird daher mit Wärmedämm-Verbundsystem ausgeführt
Ohne Oberböden in den Wohn- und Schlafräumen und ohne Malerarbeiten
Ohne Versorgungsanschlüsse und ohne Kanalanschluss



Erdgeschoss
| Wohnfläche II. BV | |
|---|---|
| Wohnen/Essen | 31,18 m² |
| Küche | 10,33 m² |
| Abstellraum | 5,87 m² |
| Flur | 5,17 m² |
| HWR | 4,04 m² |
| Windfang | 4,18 m² |
| WC | 2,20 m² |
| gesamt EG | 62,97 m² |
Dachgeschoss
| Wohnfläche II. BV | |
|---|---|
| Schlafen | 15,11 m² |
| Kind 1 | 16,33 m² |
| Kind 2 | 15,96 m² |
| Bad | 8,79 m² |
| Flur | 5,27 m² |
| gesamt DG | 61,46 m² |
Haus Schwerte gesamt
Wohnfläche II. BV
124,43 m²
Außenmaß
8,00m x 9,99m

